多做题,通过考试没问题!
机械员
睦霖题库
>
建筑八大员(九大员)住房城乡建设领域现场专业人员考试
>
机械员
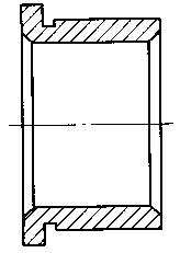
绘制、看懂机械图是机械员的基本常识。请回答以下相关问题: 于下图投影图的正确说法有()。
A、其俯视图外形与本图一样
B、其左视图外形为圆形
C、其俯视图外形为圆形
D、在零件视图中,可将俯视图、左视图位置互换
E、为表达清楚,任何零件均需画出主视图、俯视图、左视图
正确答案:
A,B
答案解析:
有
进入题库查看解析
微信扫一扫手机做题
最新试题
·
轮式机械制动系统的具体故障有()
·
设备合理使用的高效率是指()
·
起重量往往包括吊具的质量值和抓斗或电磁吸
·
某住宅小区总建筑面积19万m
2
·
某工地施工任务为土方开挖、转运、填方,土
·
三相制电源中,常用()三色分别标注A、B
·
金属材料受力时能抵抗弹性变形的能力称为(
·
爬升式塔式起重机是一种安装在()的起重机
·
多立杆脚手架可分为()和()两种形式。
·
混凝土输送泵的主要技术参数是()
热门试题
·
齿轮齿条式施工升降机中,一般有外挂式和内
·
功率为500KW的推土机属于()
·
焊修存在的主要问题及防范措施。
·
装载机按照回转方式不同可分为()
·
个基建分厂的()、()为负责项目的第一责
·
《建设工程安全生产管理条例》(国务院令第
·
混凝土振动器是一种()振动装置。
·
履带式挖掘机短距离自行转移时,应低速缓行
·
按湖南(2006)《建筑.装饰装修工程消
·
典型零件图不包括()